
| “不要把时间用来造轮子,这里有的你拿走,保留精力用来创造!”
—— 电气CAD吧 www.cad-bbs.cn |
亲们~还记得我们网站底部的这句话么?电气CAD吧自建立以来一直秉持这个观念,陆续为电气小伙伴们提供了上百个常用系列的部件库、几十套各类表格与学习图纸,还有各种EPLAN学习教程与上千条问答(通过网站导航栏上的AskECAD问答社区访问),然而我们知道,这些还远远不够,为了能为小伙伴节约更多时间和不去造轮子,即日起,我们将尝试发布有关电气原理图中常用回路的窗口宏和值集,如果大家支持的话,我们便将继续坚持下去。
我们深知所做的回路不可能适用所有人,但哪怕能为小伙伴们节约1分钟,对我们来说也是值得的,如果你发现回路有问题或需要补充,欢迎通过以下3个留言方式反馈给我:
- 留言方式1:邮箱cad-bbs@qq.cn
- 留言方式2:微信网站页脚二维码
- 留言方式3:QQ 8360156
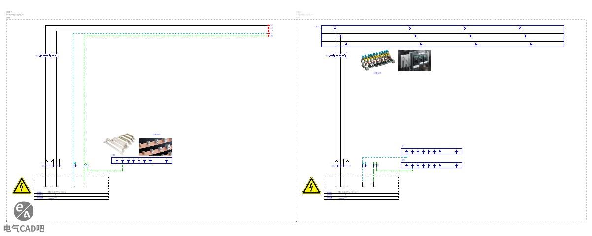
大部分发布的电气回路将按照:功能 分类制作发布,例如本次发布的是电源进线端的供电回路,收集整理后的窗口宏按进线形式分成3个变量,含端子、铜排和分线盒。

同时提供2个电源指示的子回路。

亲们可以通过插入窗口宏(M)使用,按Tab键切换各变量,受限于电气元件品牌繁多,线号规则、线径与颜色等信息无法做到统一,因此回路中将不包含部件、结构、线号与颜色信息,小伙伴们插入后,可以通过各类导航器,例如设备导航器自行指定符合项目要求的部件信息。另外回路中部分元件为了便于理解会有备注图片,请自行删除!窗口宏的默认插入点是零点,即标题框左下角,图幅尺寸为A3。
供电回路系列下载:http://www.cad-bbs.cn/power-g1
- 输入端子
- 负荷开关
- 接地铜排
- 网侧电源的电位定义点
-
熔断器(子回路) -
指示灯(子回路)
声明:您必须遵守我们的协议,如果您下载了该资源行为将被视为对《免责声明》全部内容的认可,本网站资源大都来自原创,也有少部分来自互联网收集,仅供用于学习和交流,请勿用于商业用途。如有侵权、不妥之处,请联系站长并出示版权证明以便删除。敬请谅解! 侵权删帖/违法举报/投稿等事物联系邮箱:cad-bbs@qq.com








